Сборник схем электрооборудования автомобиля Mitsubishi L200. Информация нужна для диагностики неисправностей. Представленные электрические схемы упрощают поиск неисправностей в электрооборудовании авто, что в отдельных случаях позволяет выполнить простейший ремонт своими руками. В некоторые разделы мануала входят инструкция по эксплуатации Mitsubishi L200, рекомендации по техническому обслуживанию и схемы электрооборудования автомобиля. Сборник будет полезен владельцам автомобилей Mitsubishi L200, специалистам СТО, ремонтных мастерских и автосервисов. Начало каталога схем тут. Увеличить схему можно по клику, а после - на значёк сверху. Так как не все схемы уместились на сайте - скачайте ещё 2 архива внизу страницы.
Электросхема подключения ламп подсветки двери

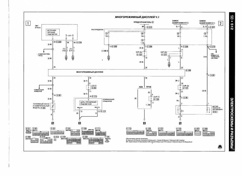
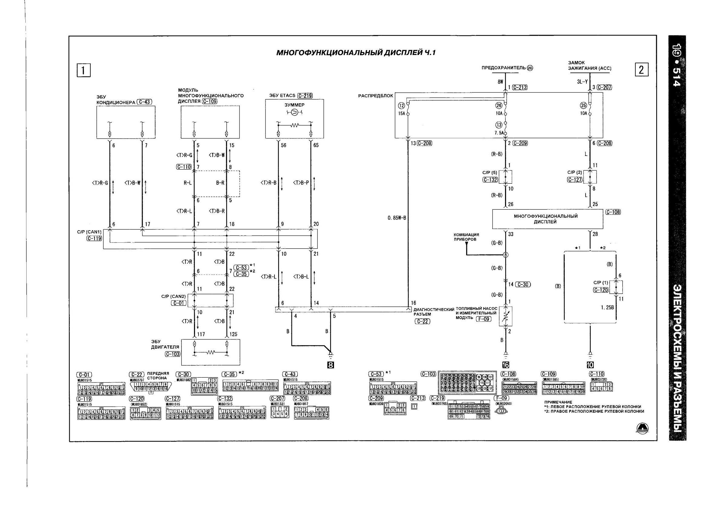
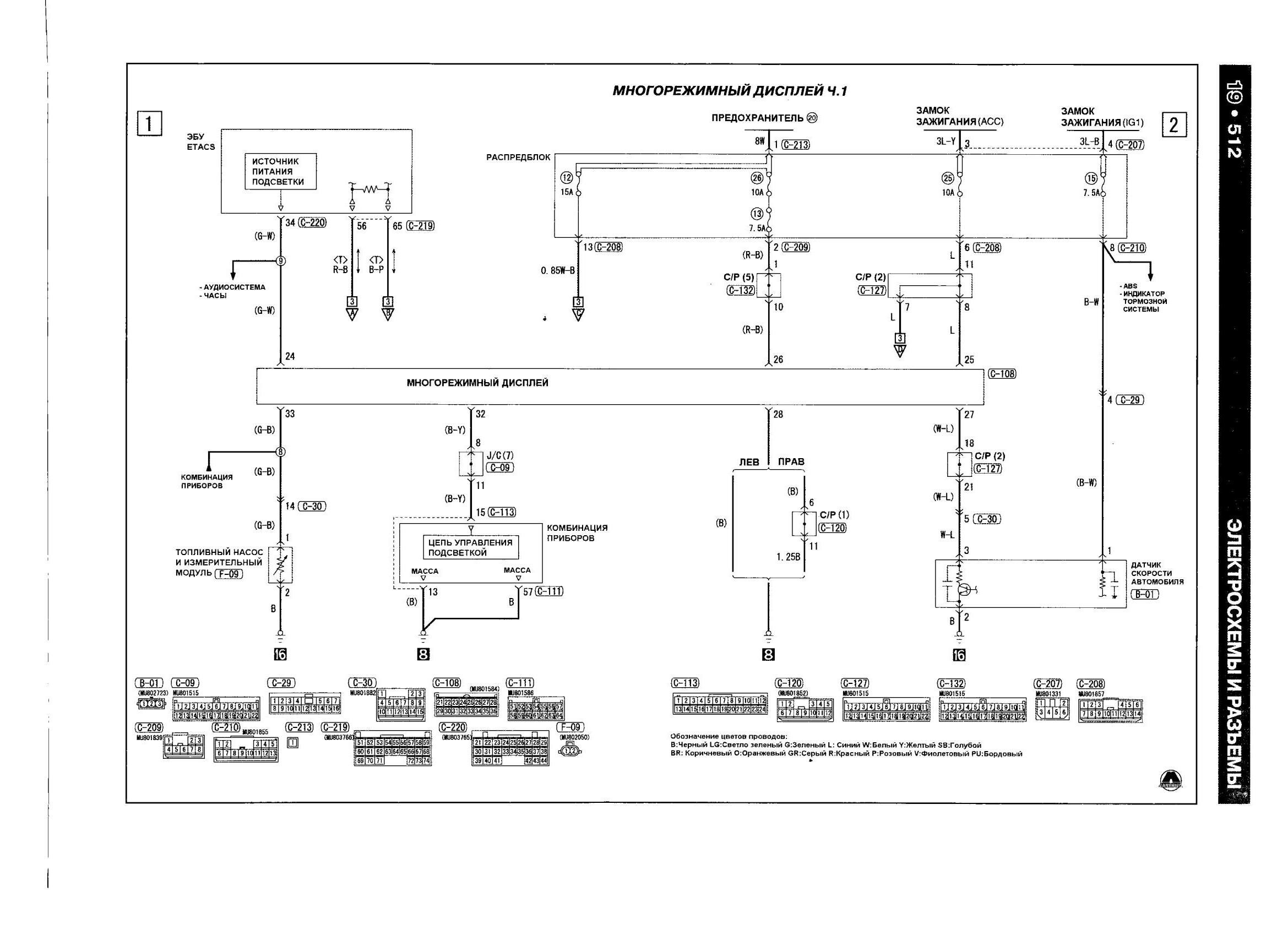
Схема на многорежимный дисплей авто Mitsubishi L200


Многофункциональный дисплей - схема и подключение


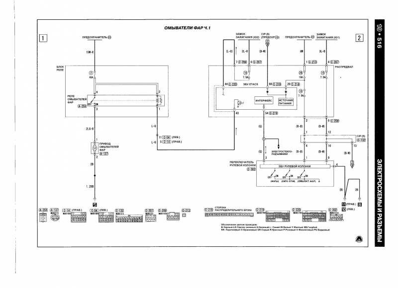
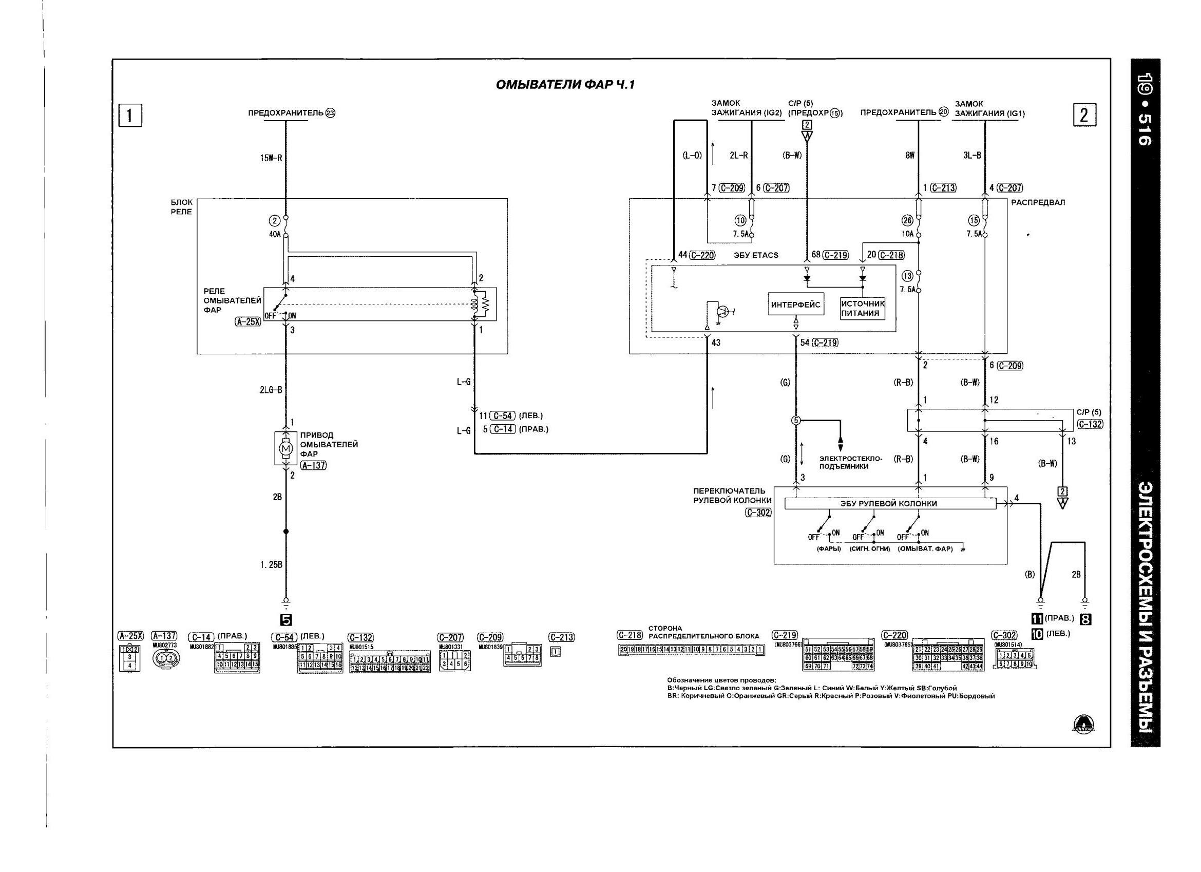
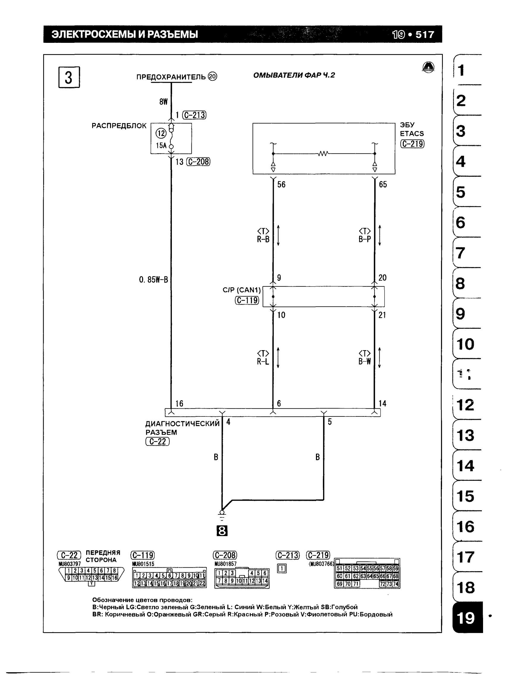
Омыватели фар


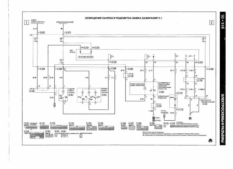
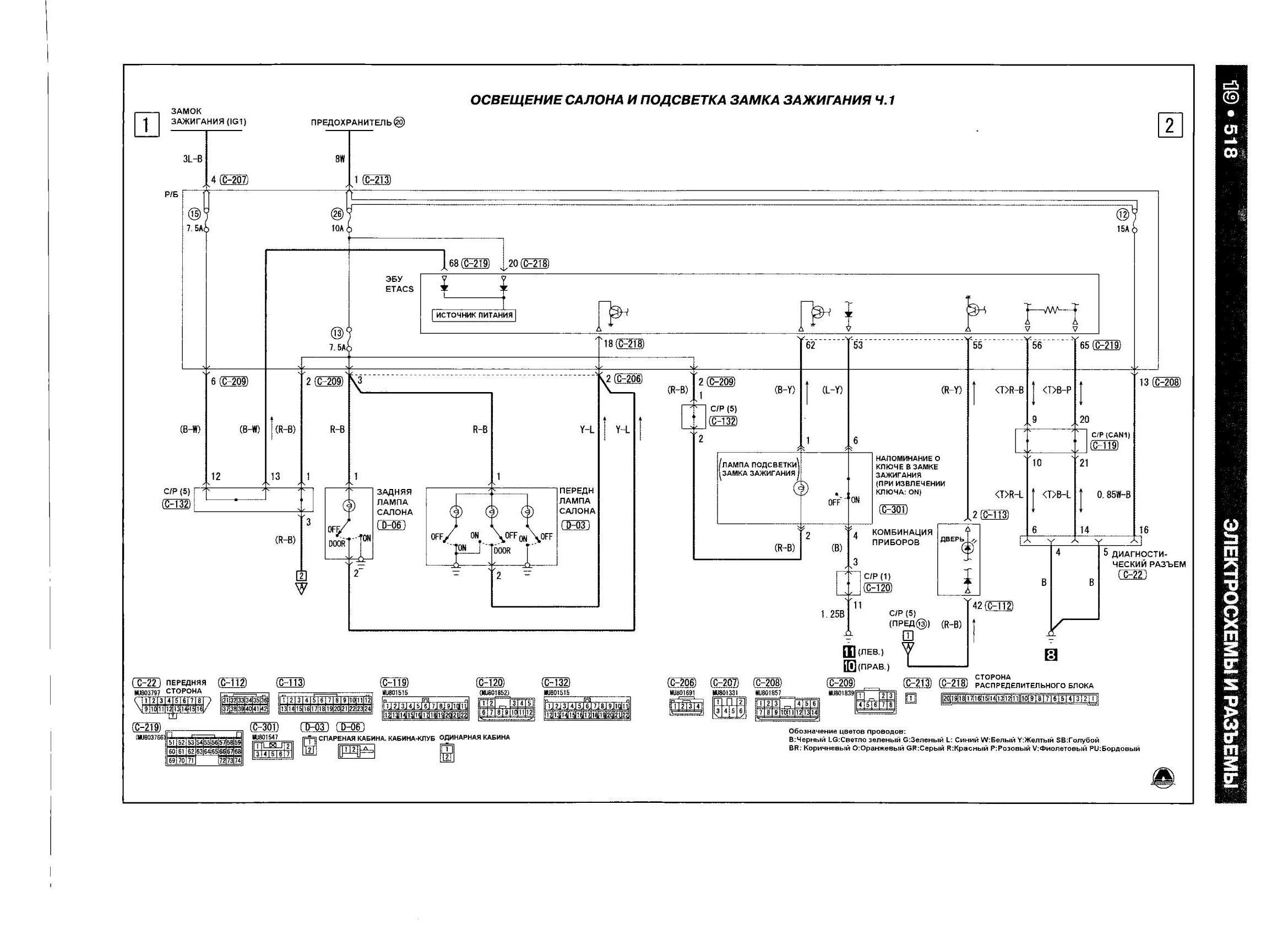
Модуль освещения салона авто и подсветки замка зажигания


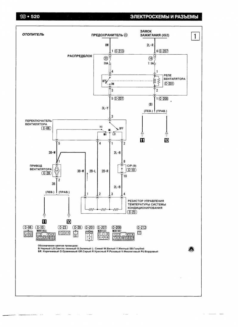
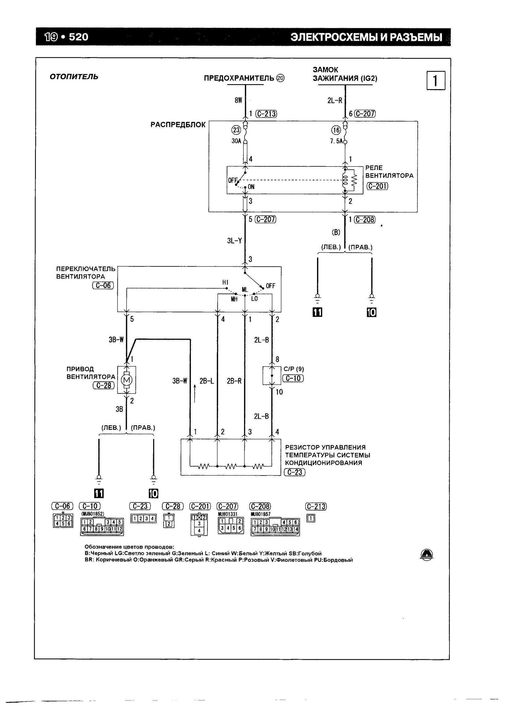
Схема отопителя Mitsubishi L200

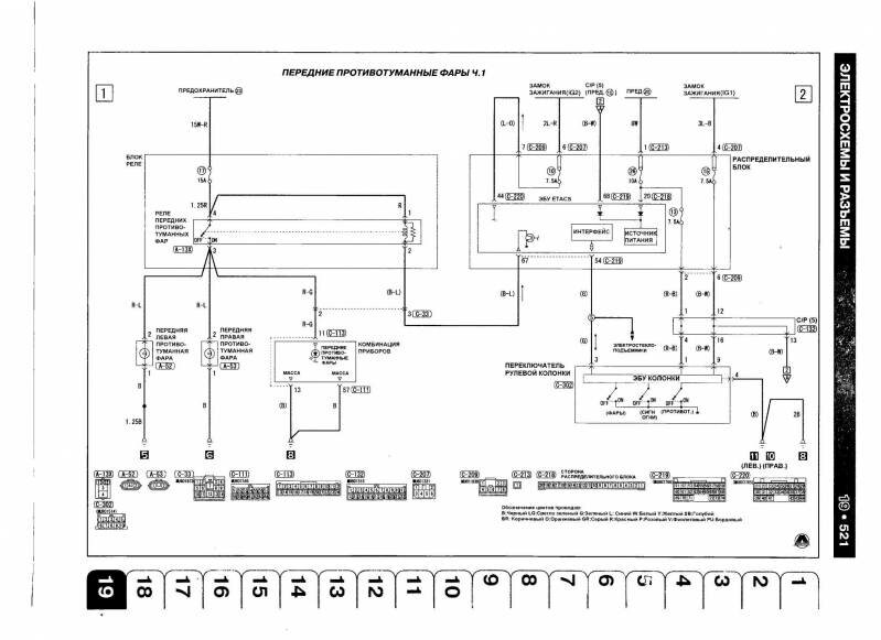
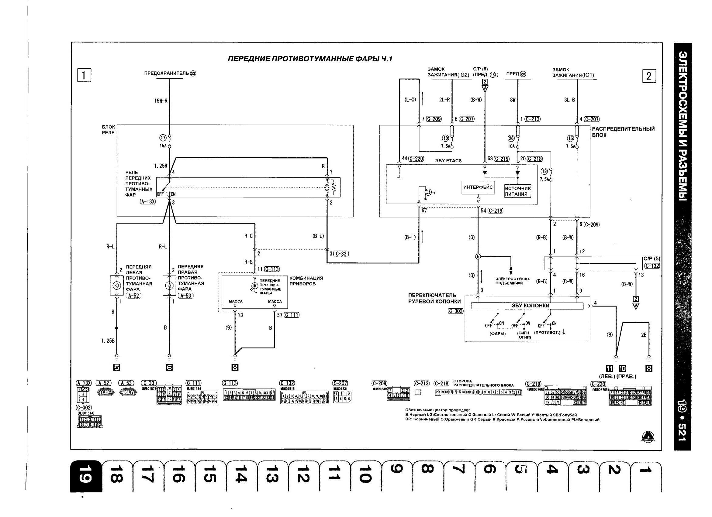
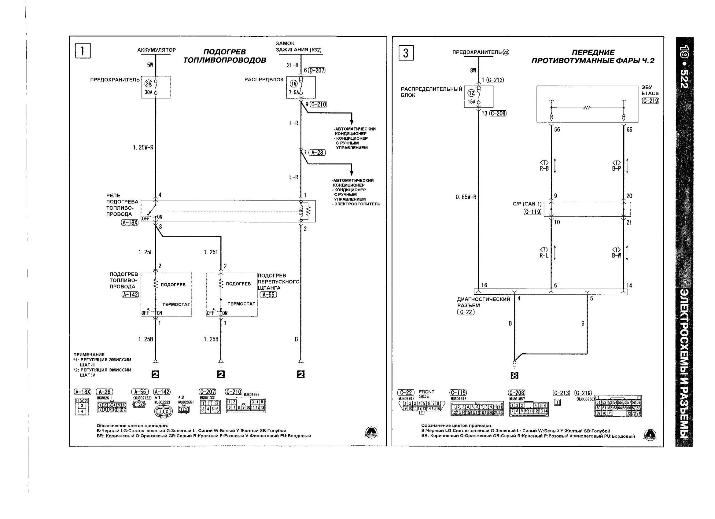
Передние противотуманные фары - подключение

Схема подогрева топливопроводов

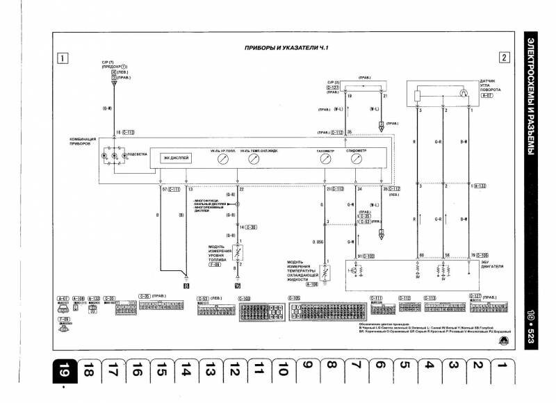
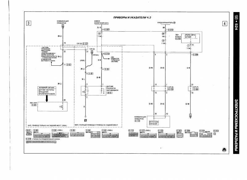
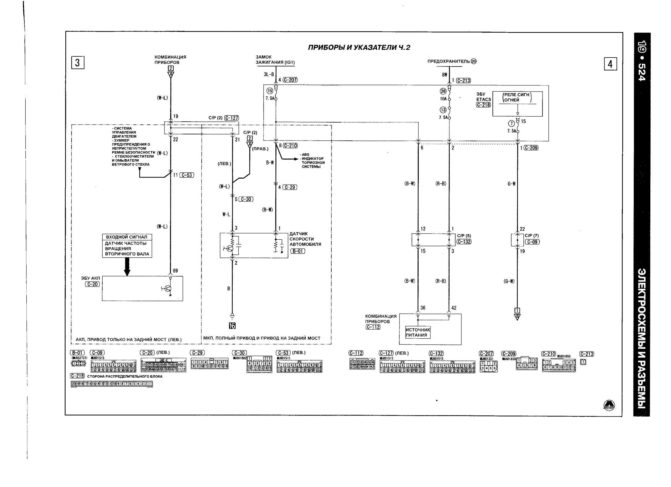
Приборы и указатели автомобиля


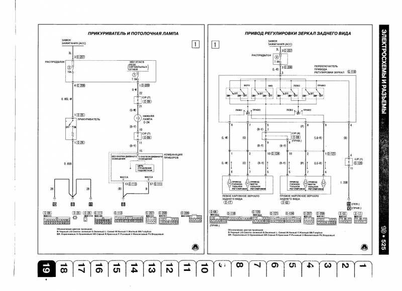
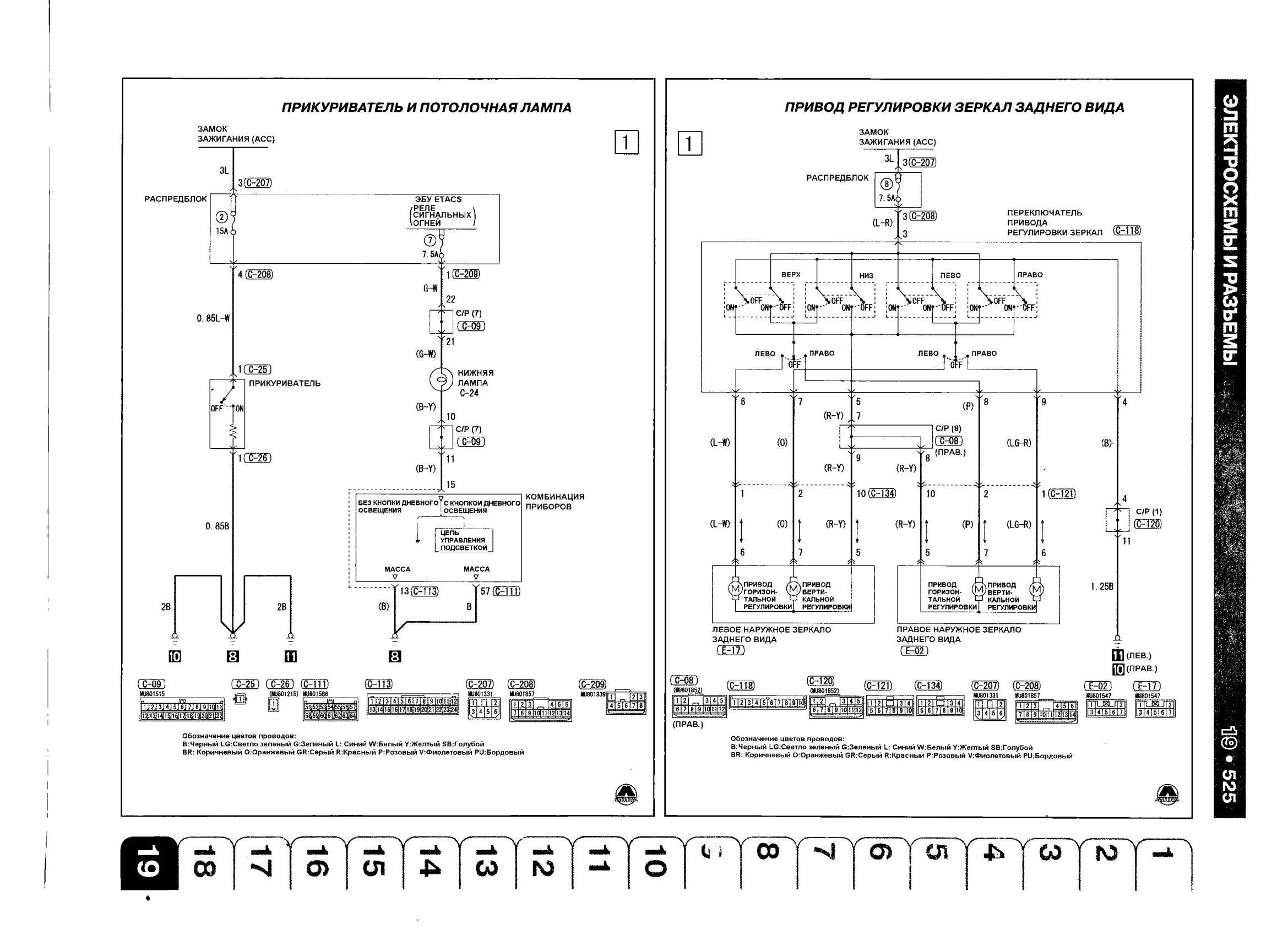
Прикуриватель, потолочная лампа и привод регулировки зеркал

Принципиальная электрическая схема распределительного блока Митсубиси Л200

Резервный разъём для аудиосистемы


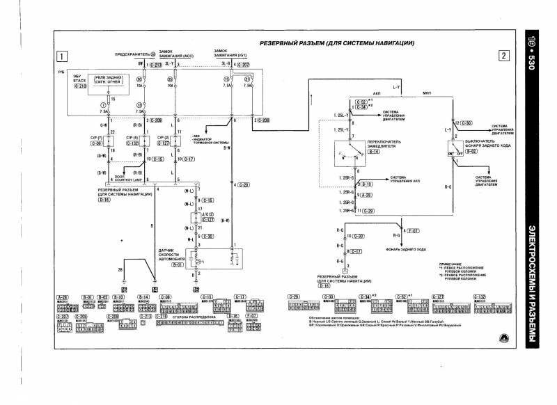
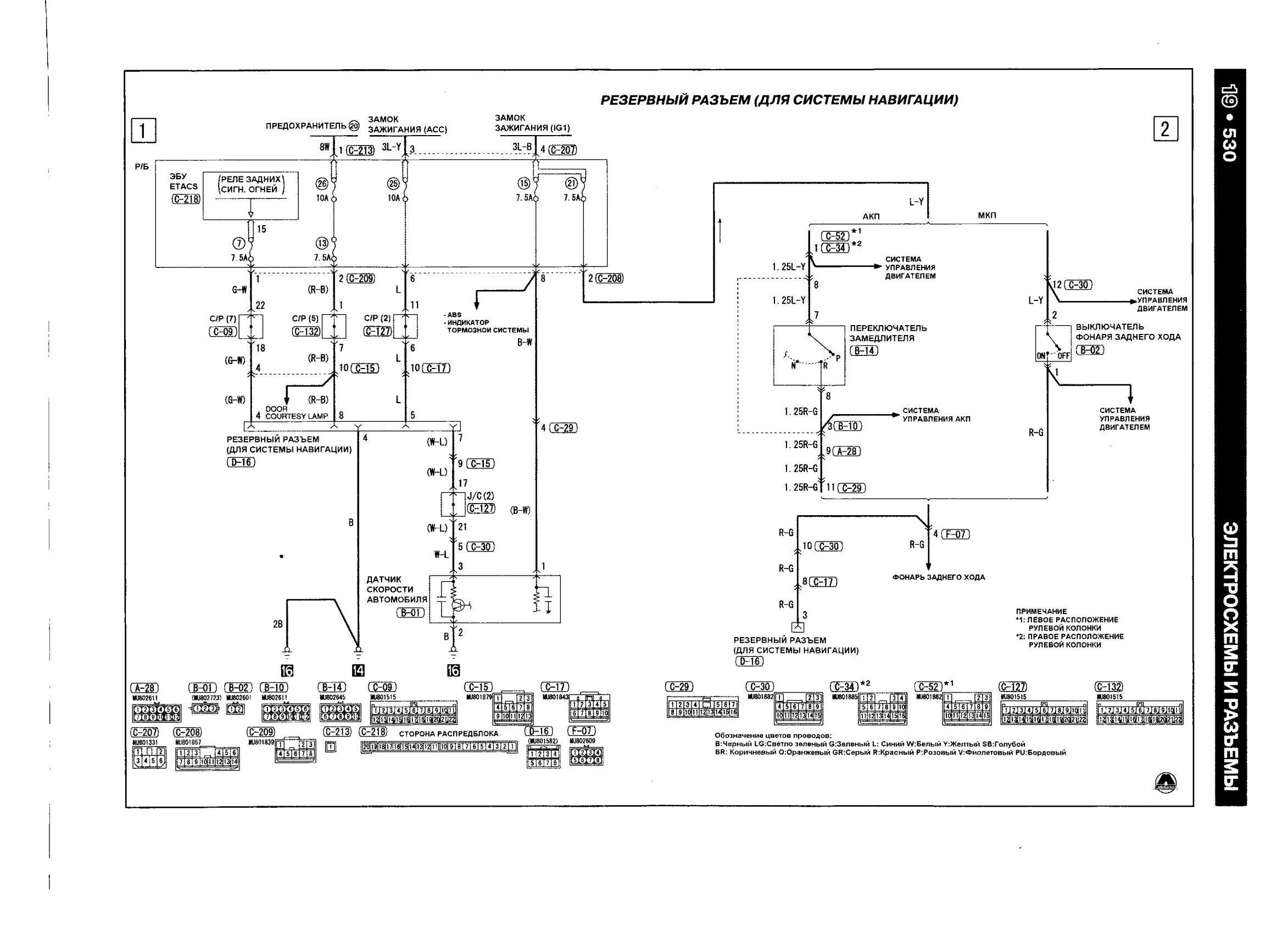
Резервный разъём


Схема световых индикаторов - комбинация приборов

Mitsubishi L200 - архив схем 1
Mitsubishi L200 - архив схем 2
РЕМОНТ АВТОЭЛЕКТРОНИКИ ЗАРЯДНЫЕ УСТРОЙСТВА ДЛЯ АКБ

|