Ниже, вашему вниманию, предоставляются схемы электрооборудования на Сузуки SX4 с 2006 г.в. и младше. Имея общую длину 4,14м, новый SX4 характеризуется как компактный автомобиль, что предоставляет преимущество при использовании автомобиля в городских условиях без ограничения для решения практических задач. Общая ширина в 1,75 м, ширина среднего автомобиля класса С, и общая высота в 1,62 м, соотносимая со средним MPV, - обеспечивают новому SX4 значительное внутреннее пространство. Объединение оптимальных размеров для этого кроссовера, обеспечивает наилучшую полезность для удовлетворения потребностей активного образа жизни.
Схема управления двигателем и кондиционером

Электросхема системы пуска

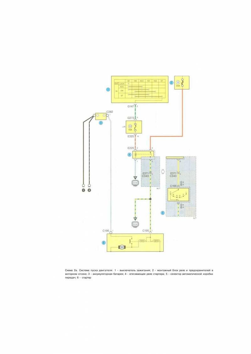
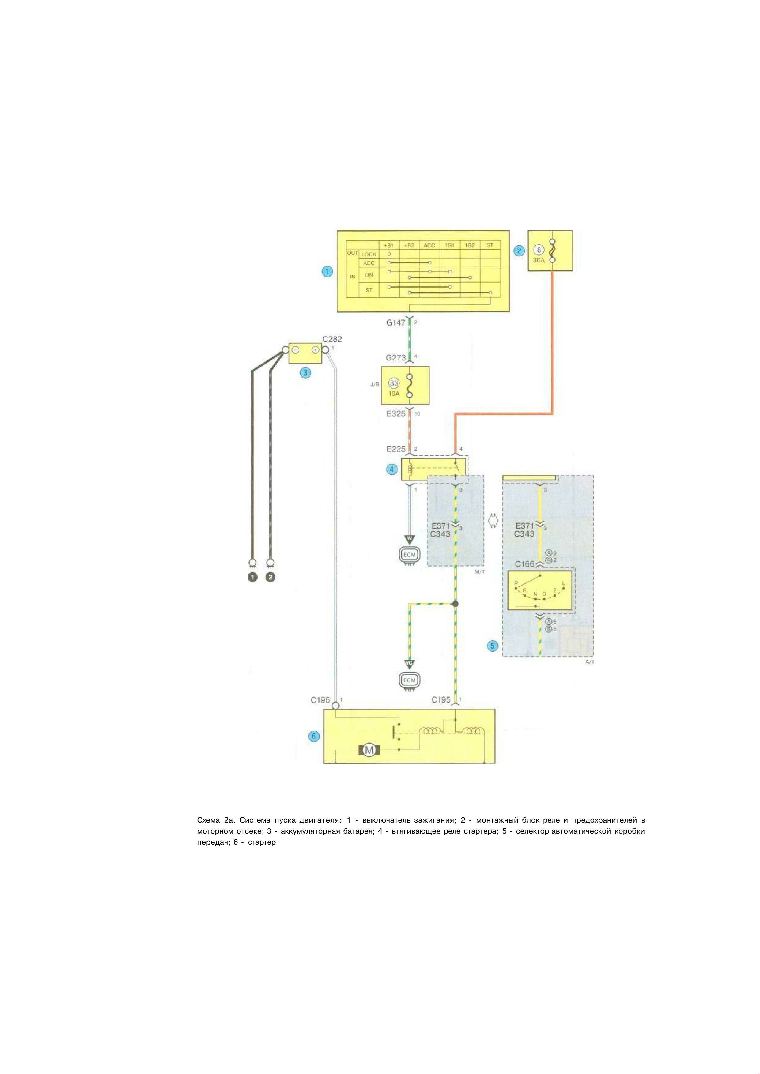
Эл.схема пуска двигателя

Система зажигания - схема

Схема иммобилизатора

Электросхема системы охлаждения и ЭУР

Схема электроусилителя рулевого управления

Эл.схема головного освещения

Габаритные огни, очиститель и омыватель ветрового стекла - электросхема на Сузуки

Очиститель и омыватель двери задка, обогрев стекла окна двери задка

РЕМОНТ АВТОЭЛЕКТРОНИКИ ЗАРЯДНЫЕ УСТРОЙСТВА ДЛЯ АКБ

|